CUSTOMISE Your Tiny Home - Call us now!

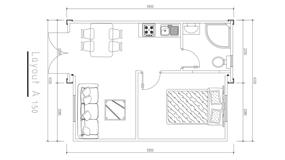
The One Bedder - From $41,800 (inc GST)

Floorplan

$41800 inc GST

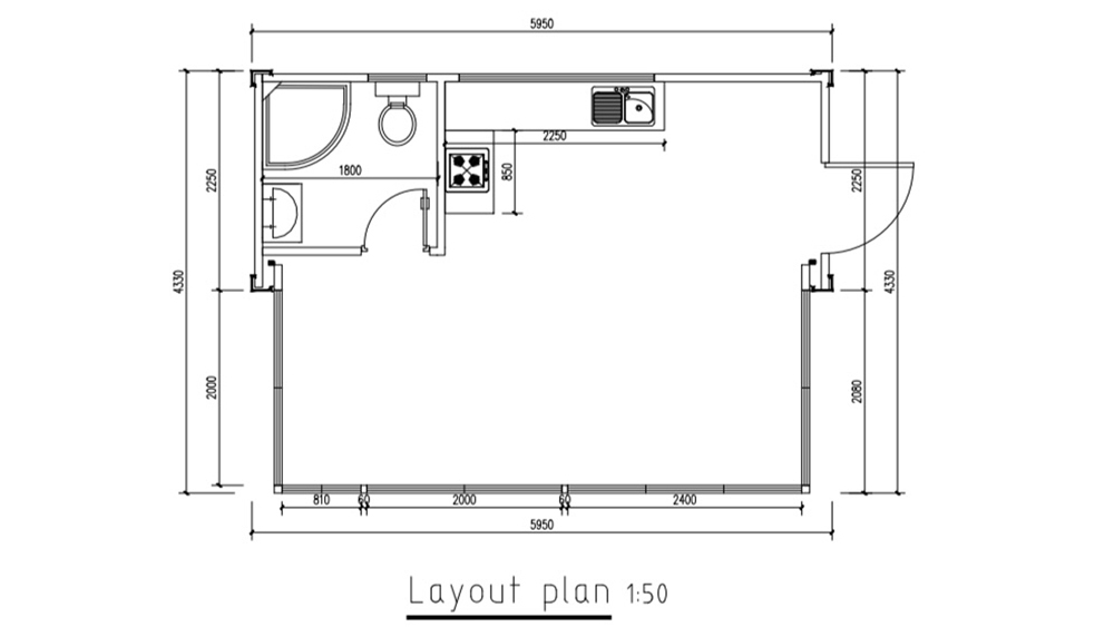
The One Bedder – open plan

Floorplan

$41800 inc GST

The One Bedder

Quick Enquiry